
pactパクト
pactパクト
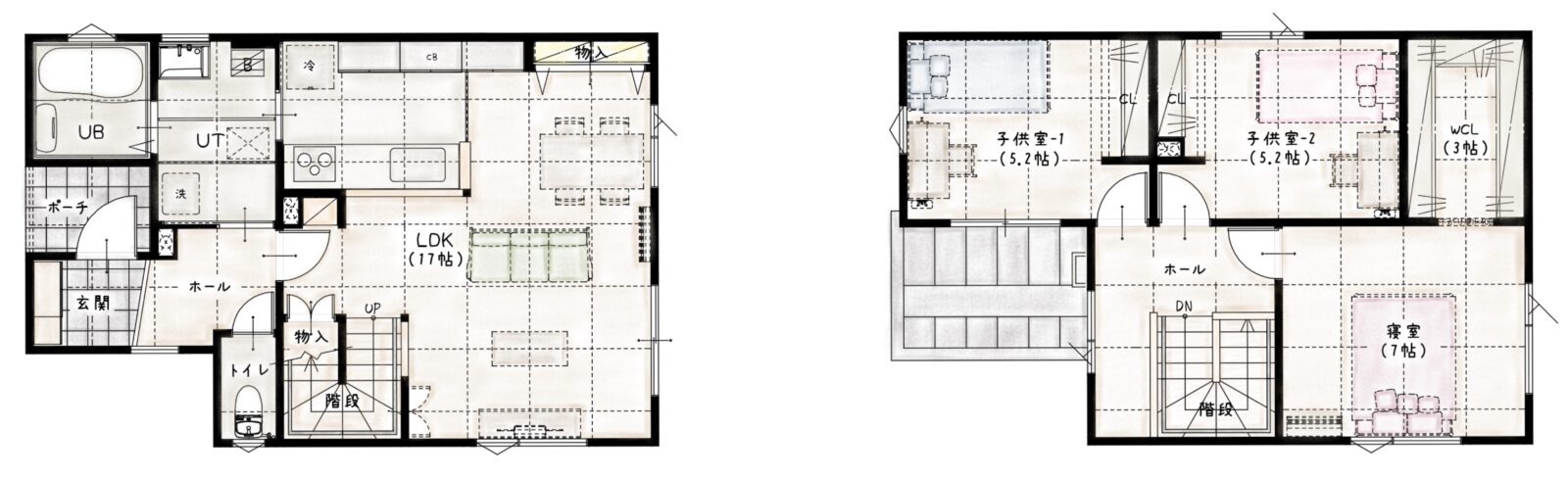
回遊動線と充実した収納で家事ラクの家
玄関~ユーティリティー~キッチン~リビングがぐるりとまわれる回遊動線♪
洗濯物干しスペースや収納が充実し、日々の暮らしがラクになる工夫が満載☆
心に余裕を持ちながら 等身大の生活を 最大限楽しめるおうちです♪

-

Point1
回遊動線で家事ラク
玄関~ユーティリティー~キッチン~リビングがぐるりとまわれる回遊動線に。
帰宅後の動線もスムーズ!
キッチンでお料理しながらお洗濯が出来たりなど、家事動線が短くてラクチン♪ -

Point2
適材適所の収納
リビングやダイニングキッチンなど必要な所に必要な収納が備え付けられています◎
寝室には3帖のウォークインクローゼットも!
サッとしまってスッキリ暮らせます☆
モデルハウス公開中
密集を避けるためご予約を推奨しております
pactパクト

札幌市北区新琴似10条16丁目9番12号
公開 【土・日・祝日】10:00 ~ 17:00
お問い合わせ 0120-216-232
平日の見学をご希望の方はご連絡・ご予約ください


